Über 300 Mustervorlagen, Fachinformation, aktuelle Judikatur
» Mehr Infos zum Portal Wohnrecht
5 Ob 164/24i; OGH; 14. November
Kopf
Der Oberste Gerichtshof hat als Revisionsgericht durch den Hofrat Mag. Wurzer als Vorsitzenden sowie den Hofrat Mag. Painsi, die Hofrätin Dr. Weixelbraun-Mohr, den Hofrat Dr. Steger und die Hofrätin Dr. Pfurtscheller als weitere Richter in der Rechtssache der klagenden Parteien 1. I*, 2. H*, ebenda, beide vertreten durch Dr. Walter Hausberger, Dr. Katharina Moritz, Dr. Alfred Schmidt, Mag. Stefan M. Rass, Rechtsanwälte in Wörgl, gegen die beklagte Partei C*, vertreten durch Mag. Christian Dillersberger, Dr. Karin Bronauer, Rechtsanwälte in Kufstein, wegen Unterlassung, über die Revision der beklagten Partei gegen das Urteil des Landesgerichts Innsbruck als Berufungsgericht vom 29. März 2024, GZ 2 R 210/23f-18, mit dem das Urteil des Bezirksgerichts Kufstein vom 26. September 2023, GZ 12 C 322/22s-14, bestätigt wurde, zu Recht erkannt:
Spruch
Der Revision wird Folge gegeben.
Die Entscheidungen der Vorinstanzen werden dahin abgeändert, dass sie zu lauten haben:
„Das Klagebegehren, die beklagte Partei habe es zu unterlassen, die ausschließlich den klagenden Parteien zugeordnete und gemäß dem einen integrierten Bestandteil bildenden Lageplan (./D) dargestellte Fläche im Ausmaß von 15,15 m2, bezeichnet als 'Top 4 Zufahrt/Zugang' der Liegenschaft EZ * KG * zu benützen, wird abgewiesen.
Die klagenden Parteien sind schuldig, der beklagten Partei binnen 14 Tagen deren mit EUR 1.850,24 (darin EUR 308,37 USt) bestimmten Kosten des Verfahrens erster Instanz zu ersetzen.“
Die klagenden Parteien sind schuldig, der beklagten Partei binnen 14 Tagen dessen mit EUR 1.634,72 (darin EUR 160,80 USt und EUR 669,90 Barauslagen) bestimmten Kosten des Berufungsverfahrens und dessen mit EUR 1.500,68 (darin EUR 110,48 USt und EUR 838,20 Barauslagen) bestimmten Kosten des Revisionsverfahrens zu ersetzen.
Entscheidungsgründe
[1] Die Streitteile sind – neben weiteren nicht am Verfahren beteiligten Personen – Mit- und Wohnungseigentümer einer Liegenschaft, auf der ein Mehrfamilienwohnhaus errichtet ist. Mindestanteilen der Kläger von jeweils 141/942 ist Wohnungseigentum an der Wohnung Top 2, denjenigen von je 15/942 Wohnungseigentum an den Parkplätzen Top 4 und Top 5 zugeordnet. Mit den Mindestanteilen von 272/942 des Beklagten ist Wohnungseigentum an der Wohnung Top 1 verbunden.
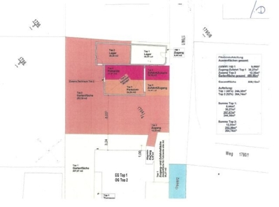
[2] Diese Mindestanteile basieren auf einem Nutzwertgutachten vom 23. August 2016, das Grundlage eines Wohnungseigentumsänderungsvertrags war. Auf Basis dieses Gutachtens wurden den Wohnungen Top 1 und Top 2 Gartenflächen, die vorher Allgemeinflächen gewesen waren, als Zubehör zugeschlagen, ebenso jeweils ein Lagerraum, wobei derjenige zur Wohnung des Beklagten Top 1 eine eigene Zugangsfläche (im Ausmaß von 6,44 m2) erhalten sollte. Diese ebenfalls als Zubehör der Top 1 zugeschlagene Zugangsfläche grenzt an das öffentliche Gut, der dort vorgesehene Zugang zum Lager zu Top 1 wurde bislang baulich nicht errichtet. Tatsächlich erfolgt der Zugang zu diesem Lagerraum unverändert über ein an der Südwestwand des Lagers angebrachtes Rolltor, das allerdings nur über eine als „Top 4 Zufahrt/Zugang“ bezeichnete Fläche betreten werden kann, die dem Parkplatz Top 4 der Kläger vorgelagert und diesem zugeordnet ist. Die örtliche Situation ist aus dem im Anschluss dargestellten Plan ./D ersichtlich:

[3] Die Kläger begehren vom Beklagten, die Benützung der ausschließlich ihnen zugeordnete Zufahrtsfläche zu Top 4 zu unterlassen. Der Beklagte sei erst mit Wohnungseigentumsänderungs- und Kaufvertrag vom 17. 03.2017 Eigentümer der Wohnung Top 1 samt Zubehör geworden, der Wohnungseigentumsänderung sei das Nutzwertgutachten vom 23.08.2016 zugrunde gelegen. Danach müsse der Zugang zum Lagerraum Top 1 des Beklagten über eine eigene Zugangsfläche erfolgen. Der Beklagte habe zugesagt, den im Plan vorgesehenen Zugang zu seinem Lager zu Top 1 baulich herzustellen, dies bislang aber unterlassen und nutze den den Klägern gehörigen Zufahrts- und Zugangsweg konsenslos. Da das Parifizierungsgutachten verbüchert sei, sei auf seiner Grundlage wirksam Wohnungseigentum begründet worden.
[4] Der Beklagte bestritt das Klagebegehren, beantragte dessen Abweisung und wendete ein, seit jeher erfolge der Zugang zu seinem Lagerraum zu Top 1 über das bestehende Tor über den Vorplatz des Lagers, der vor Abänderung des Wohnungseigentumsvertrags Allgemeinfläche gewesen sei. Der im Plan des Parifizierungsgutachtens eingezeichnete Zugang zu seinem Lagerraum bestehe in der Natur nicht. Da auch der Raum mit dem Hauptwasseranschluss in die Nutzwertfestsetzung einbezogen und dieser Kellerraum den Klägern zugeordnet worden sei, sei die Nutzwertfeststellung und die darauf fußende Wohnungseigentumsbegründung samt der darauf beruhenden Grundbuchseintragungen rechtlich unmöglich und absolut nichtig. Die Eigentümer einer solchen Liegenschaft seien nicht Wohnungseigentümer, sondern nur schlichte Miteigentümer. Als schlichtem Miteigentümer stehe ihm ein Mitbenutzungsrecht an der Zufahrtsfläche zu Top 4 zu. Die Nutzung dieser Fläche hätten die Kläger immer gestattet.
[5] Das Erstgericht gab dem Klagebegehren statt. Zwar sei die Begründung von Wohnungseigentum an allgemeinen Teilen der Liegenschaft, die der allgemeinen Benützung dienen und deren Zweckbestimmung einer ausschließlichen Nutzung entgegensteht, unwirksam, was auch für die Wohnungseigentumsbegründung im Keller an einem Abteil gelte, in dem sich der allgemeine Wasseranschluss des Gebäudes befinde. Dies könne aber im Zuge einer Neufestsetzung der Nutzwerte berichtigt werden. Am Bereich „Top 4 Zufahrt/Zugang“ sei Wohnungseigentum für die Kläger begründet worden. Dieser Bereich sei nicht per se notwendig allgemeiner Teil der Liegenschaft, sodass das dem Vertrag zugrunde liegende Gutachten insoweit nicht nichtig und die Begründung des Wohnungseigentums nicht unwirksam sei. Bis zu einer Neufestsetzung der Nutzwerte im Außerstreitverfahren stehe dem Beklagten aufgrund der Parifizierung und der Eintragung im Grundbuch kein Recht zu, die Fläche der Kläger als Zugang zu nutzen.
[6] Das Berufungsgericht bestätigte diese Entscheidung. Entgegen der Auffassung des Erstgerichts beschränke sich die Rechtsunwirksamkeit der Wohnungseigentumsbegründung an notwendig allgemeinen Teilen der Liegenschaft nicht nur auf den davon betroffenen allgemeinen Teil, sondern führe zur Rechtsunwirksamkeit der gesamten Nutzwertfestsetzung und der auf ihr basierenden Wohnungseigentumsvereinbarung. Da die Wohnungseigentumsbegründung am Kellerabteil mit dem Hauptwasseranschluss unzulässig sei, seien die Streitteile entgegen dem Grundbuchstand rechtlich nicht Wohnungseigentümer, sondern nur schlichte Miteigentümer. Auch diesen könne aber ein Alleinbenützungsrecht an einzelnen Teilen der Liegenschaft zukommen, wenn es eine Benützungsregelung gebe. Als solche wertete das Berufungsgericht den Wohnungseigentumsänderungsvertrag, in dem einzelne Liegenschaftsteile den Miteigentümern zur alleinigen Nutzung zugewiesen worden seien. Nichtig sei zwar die Zuweisung des notwendigerweise auch vom Beklagten zu erreichenden Kellerraums an die Kläger, was aber nicht zur Gesamtnichtigkeit aller Regelungen führe. Das Alleinbenützungsrecht der Kläger bestehe unter der Voraussetzung, dass es sich bei der Zufahrtsfläche zu Top 4 nicht um einen notwendig allgemeinen Teil der Liegenschaft handle. Notwendig allgemeiner Teil wäre diese Fläche nur dann, wenn man davon ausginge, dass ein Zubehörobjekt wie hier das Lager Top 1 jedenfalls von Allgemeinflächen der Liegenschaft aus zugänglich sein müsse und es nicht ausreiche, dass es ohne Inanspruchnahme anderer Wohnungseigentums- oder Zubehörobjekte zugänglich wäre. Ein Zugang zum Lager sei über die Grundgrenze der Liegenschaft möglich, auch wenn der Beklagte diesen Zugang entgegen der Vereinbarung der Streitteile bislang nicht hergestellt habe. Auf dessen baurechtliche Genehmigungsfähigkeit komme es nicht an.
[7] Den Entscheidungsgegenstand bewertete das Berufungsgericht mit EUR 5.000,– übersteigend. Die Revision ließ es mit der Begründung zu, die Entscheidung würde sich ändern, ginge man davon aus, dass ein Zubehörobjekt für den Wohnungseigentümer über die Liegenschaft selbst direkt zugänglich sein müsse, somit über eigene oder Allgemeinflächen. Diesfalls wäre die Benützungsregelung hinsichtlich der zwischen dem Wohnhaus und dem Lager befindlichen Fläche unwirksam, den Klägern käme dann kein Alleinbenützungsrecht daran zu.
[8] Dagegen richtet sich die Revision des Beklagten, der beantragt, die Entscheidungen der Vorinstanzen im Sinn einer Abweisung der Klage abzuändern, und hilfsweise einen Aufhebungsantrag stellt.
[9] Die Kläger beantragen in ihrer Revisionsbeantwortung, die Revision mangels erheblicher Rechtsfrage zurückzuweisen, hilfsweise ihr nicht Folge zu geben.
[10] Die Revision ist aus dem vom Berufungsgericht genannten Grund zulässig. Sie ist auch berechtigt.
Rechtliche Beurteilung
[11] Der Revisionswerber meint im Wesentlichen, Teile des Hauses, auf deren Mitbenützung Dritte angewiesen seien, um ihre individuellen oder gemeinschaftlichen Nutzungsrechte ausüben zu können, seien im Sinn des WEG notwendig allgemeine Teile der Liegenschaft. Alternative Zugangsmöglichkeiten über öffentliche Verkehrsflächen könnten den wohnungseigentumsrechtlichen Charakter von Verbindungsflächen als notwendig allgemeine Teile nicht beeinflussen. Daher seien Zugänge oder Durchgänge zu allgemeinen Teilen der Liegenschaft oder zu einem bestimmten Wohnungseigentumsobjekt notwendig allgemeine Teile, hinsichlich der eine Benützungsvereinbarung nicht zulässig sei. Überdies sei der herzustellende direkte Zugang zum Lager Top 1 über die Gemeindestraße nach Auskunft der Baubehörde baurechtlich nicht möglich.
Hiezu wurde erwogen:
[12] 1. Nach ständiger Rechtsprechung des Obersten Gerichtshofs (RS0097520; 5 Ob 225/18h) ist die Begründung von Wohnungseigentum an allgemeinen Teilen der Liegenschaft, also Teilen, die der allgemeinen Benützung dienen und deren Zweckbestimmung einer ausschließlichen Nutzung entgegensteht, unwirksam. Darauf beruhende Grundbuchseintragungen sind absolut nichtig (5 Ob 226/07g [Hausbesorgerwohnung]; RS0082927). Die auf diese Rechtsprechung gestützte Auffassung des Berufungsgerichts, hier sei von der Nichtigkeit der Wohnungseigentumsbegründung bereits deshalb auszugehen, weil sich der allgemeine Wasseranschluss, der auch für den Beklagten und die anderen Wohnungseigentümer erreichbar sein muss, in dem als Zubehör dem Objekt der Kläger zugeordneten Kellerabteil befindet, ziehen die Streitteile im Revisionsverfahren nicht mehr in Zweifel. Mit dem Berufungsgericht ist daher für die weiteren Überlegungen davon auszugehen, dass die Streitteile entgegen dem aufrechten Grundbuchstand rechtlich nicht Wohnungseigentümer, sondern nur schlichte Miteigentümer sind, weil sie über keinen dem Gesetz entsprechenden Mindestanteil verfügen (vgl RS0114510).
[13] 2. Nach bereits bestehender Rechtsprechung (5 Ob 279/00s; 7 Ob 4/16p; 5 Ob 137/17h) kann dann, wenn eine Korrektur einer fehlerhaften Nutzwertfestsetzung aktuell aussichtslos ist, weil kein Einvernehmen der Wohnungseigentümer erzielt werden kann, schlichtes Miteigentum sämtlicher Teilhaber mit einer schuldrechtlichen Benützungsregelung an den einzelnen ihnen zugewiesenen Objekten bestehen. Voraussetzung für die Zulässigkeit einer derartigen Benützungsvereinbarung ist aber jedenfalls, dass die (Teile der) gemeinsame(n) Sache – auch des betroffenen allgemeinen Teils einer Wohnungseigentumsliegenschaft – überhaupt benützbar und auch rechtlich verfügbar sind (vgl zu schlichtem Miteigentum 3 Ob 51/03a; 10 Ob 25/06h; H. Böhm/Palma in Kletečka/Schauer, ABGB-ON1.02 § 828 Rz 46; Sprohar-Heimlich in Schwimann/Kodek, ABGB Praxiskommentar IV 5 § 835 ABGB Rz 18). Allgemeine Teile einer Liegenschaft kann eine Benützungsvereinbarung daher nur dann erfassen, wenn sie verfügbar sind; notwendig der allgemeinen Benützung dienende Teile der Liegenschaft sind aber nicht verfügbar (5 Ob 264/08x). Zwingend allgemeine Teile der Liegenschaft können daher nicht Gegenstand einer rechtswirksamen obligatorischen Benützungsvereinbarung sein, was gerade für den Fall einer nichtigen Wohnungseigentumsbegründung bedeutsam ist, zumal die mit Nichtigkeit belastete Einheit in der Regel allen Miteigentümern zur Verfügung zu stehen hat (Prader WEG6.08 § 17 Anm 2).
[14] 3.1. Das Berufungsgericht prüfte hier das Bestehen einer obligatorischen Benützungsvereinbarung der Streitteile auf Basis des Wohnungseigentumsabänderungsvertrags und vertrat die Auffassung, die den Klägern (als Zubehör) zugeordnete Zufahrts- und Zugangsfläche zu Top 4 sei kein notwendig allgemeiner Teil. Dem ist zunächst entgegenzuhalten, dass es im Verfahren erster Instanz an jeglichem Prozessvorbringen der Kläger zum Bestehen einer obligatorischen Benutzungsvereinbarung für den Fall der von ihnen noch im Berufungsverfahren bestrittenen – absoluten Nichtigkeit der Wohnungseigentumsbegründung fehlte; auch dem auf die Nichtigkeit der Grundbuchseintragung gestützten Einwand des Beklagten, er sei als schlichter Miteigentümer zur Mitbenützung berechtigt (Tagsatzungsprotokoll vom 23.06.2023, S 10), setzten sie nur den Hinweis auf den auf das Nutzwertgutachten gestützten Grundbuchstand und ihre Stellung als Wohnungseigentümer entgegen. Selbst wenn man mit dem Berufungsgericht davon ausgehen wollte, die Kläger hätten sich damit nicht nur auf ihre Stellung als Wohnungseigentümer in Ansehung der strittigen Fläche berufen, sondern – zumindest implizit – auch auf eine obligatorische Benutzungsvereinbarung und die Verfügbarkeit dieser Fläche, wäre für sie aber nichts gewonnen.
[15] 3.2. Auszugehen ist nämlich zunächst davon, dass die Nutzwertfestsetzung auf Basis des realen Zustands einer Liegenschaft einschließlich der darauf errichteten oder nach genehmigten Bauplänen zu errichtenden Baulichkeiten zu erfolgen hat (Ofner in GeKo, Wohnrecht II2 § 9 WEG Rz 3), der aktuell einzige Zugang zum Lager Top 1 aber unverändert nur über die nunmehr strittige Fläche „Top 4 Zufahrt/Zugang“ möglich ist. Der im Plan ./D eingezeichnete Zugang von der nur vom öffentlichen Gut aus erreichbaren Zugangsfläche von 6,44 m2 existiert nicht. Dass ein derartiger Zugang baubehördlich bewilligt worden wäre, haben die Kläger nicht behauptet; der Beklagte hat vielmehr ausdrücklich bestritten, dass eine baubehördliche Bewilligung überhaupt erzielt werden könnte, und dazu die Urkunde ./2 vorgelegt. Selbst wenn man die Frage der baubehördlichen Bewilligung hiefür mit dem Berufungsgericht für irrelevant hält, die auf die Behauptung der Kläger gegründete Feststellung einer Vereinbarung, dass der Beklagte den neuen Zugang zu seinem Lager Top 1 herstellt, hingegen für relevant, wäre für die Kläger nichts gewonnen.
[16] 3.3. Grundsätzlich sind notwendig allgemeine Teile an Liegenschaften solche, die kraft ihrer Beschaffenheit von vornherein nicht als Wohnung oder Zubehör benutzbar sind, weil ihnen die Eignung fehlt, selbstständig und ausschließlich benützt zu werden (RS0117164). In der Judikatur sind als notwendig allgemeine Fläche insbesondere Zugänge oder Durchgänge zu allgemeinen Teilen der Liegenschaft (5 Ob 264/08x) oder auch Flächen anerkannt, die nur zu einer bestimmten Wohnung oder zu einem bestimmten Geschäftslokal führen und vom Eigentümer dieses Objekts allein benutzt werden müssen (RS0013189). Das Erfordernis der allgemeinen Benützung ist auch dann gegeben, wenn nur ein Teil der Miteigentümer auf die Benützung angewiesen ist (RS0117164). Demgemäß gelten als notwendig allgemeine Teile insbesondere Hofflächen, die erforderlich sind, um zu Wohnungseigentumsobjekten zu gelangen (5 Ob 151/20x), Heizungs- und Aufzugsanlagen, Stiegenaufgänge sowie Gänge und Durchgänge, die dem Zu- oder Durchgang von mehr als einem Wohnungseigentümer dienen (vgl Ofner in GeKo, Wohnrecht II2 § 2 Rz 33 mwN aus der Rechtsprechung). Ausschlaggebend für die Beurteilung der Fläche als notwendig allgemeiner Teil ist die Zweckbestimmung innerhalb der Gesamtliegenschaft (5 Ob 109/10f; 5 Ob 182/08p – [Vorrichtung zum Erreichen eines Stapelparkplatzes]).
[17] 3.4. Nach der Rechtsprechung können zwar Zugangsalternativen ein „Angewiesensein“ auf allgemeine Teile der Liegenschaft beseitigen (5 Ob 5/95; 5 Ob 264/08x; 5 Ob 201/09h), wobei sich Fragen der Brauchbarkeit oder Gleichwertigkeit alternativer Zugangsmöglichkeiten im Regelfall wegen ihrer Einzelfallbezogenheit – abgesehen von krassen Fehlbeurteilungen – der Revisibiltät entziehen (5 Ob 201/09h). Allerdings hat der Fachsenat zu 5 Ob 201/09h bereits zur Frage Stellung genommen, ob Wohnungseigentümer auf die Benützung öffentlicher Verkehrsflächen verwiesen werden können, um von einem Gebäude der Wohnungseigentumsliegenschaft zu einem anderen Gebäude derselben Liegenschaft zu gelangen, wenn baulich eine Allgemeinfläche als Verbindungsweg zwischen beiden vorhanden ist. Der dortigen Argumentation des Rekursgerichts, beide Häuser der Wohnungseigentumsanlage könnten von öffentlichen Flächen her betreten werden, wurde aus wohnungseigentumsrechtlicher Sicht eine Absage erteilt. Der Fachsenat ging davon aus, dass dann, wenn ein allgemeiner Teil der Liegenschaft einzige Verbindung zwischen anderen allgemeinen Teilen der Liegenschaft ist, dieser schon dadurch den wohnungseigentumsrechtlichen Charakter des § 2 Abs 4 zweiter Fall WEG 2002 erhält und allein auf die Zweckbestimmung innerhalb der Gesamtliegenschaft abzustellen ist, weshalb eine Einbeziehung von außerhalb der Liegenschaft gelegenen Zugangsmöglichkeiten über öffentliche Verkehrsflächen den wohnungseigentumsrechtlichen Charakter eines allgemeinen Teils nicht beeinflussen kann. Auch wenn Gegenstand dieser Entscheidung die Zulässigkeit einer Benützungsvereinbarung über eine Verbindungsfläche zwischen zwei Gebäuden war, sind diese Prinzipien auch hier heranzuziehen, weil auch im vorliegenden Fall auf die rechtliche Verfügbarkeit der in Rede stehenden Fläche als Voraussetzung für eine Benützungsvereinbarung davon abzustellen ist.
[18] 3.5. Zu prüfen ist daher, ob dem Beklagten eine gleichwertige Zugangsmöglichkeit zum als Zubehör zu seiner Wohnung Top 1 gewidmeten Lager über den im Plan eingezeichneten „Zugang Top 1“ zukommt, wenn ihm die Nutzung des Rolltors, das auf die derzeit den Klägern zugewiesene strittige Fläche führt, verboten wird. Dies ist selbst dann zu verneinen, wenn man – ungeachtet des Umstands, dass die Vereinbarung zur Errichtung des derzeit baulich nicht vorhandenen Zugangs zum Lager vom öffentlichen Gut her nach den Feststellungen nicht alle Wohnungseigentümer, sondern nur die Erstklägerin und der Beklagte schlossen – einer solchen Vereinbarung rechtliche Relevanz zuerkennen wollte. Ein Betreten seines Lagers wäre dem Beklagten nämlich selbst im Fall der Errichtung dieses alternativen Zugangs nur dann möglich, wenn er die Liegenschaft verlässt, öffentliche Verkehrswege in Anspruch nimmt und dann – über den ihm zugeordneten Zugang zu Top 1 im Ausmaß von 6,44 m2 – sein Zubehörobjekt betritt. Eine der Benutzung der dem Parkplatz der Kläger Top 4 vorgelagerten Fläche und des Rolltors gleichwertige Zugangsalternative liegt darin aber nicht.
[19] 3.6. Da die Fläche „Top 4 Zufahrt/Zugang“ somit nicht als für eine Benützungsvereinbarung verfügbar anzusehen ist, kann in der Zuweisung dieser Fläche an die Kläger im Wohnungseigentumsabänderungsvertrag entgegen der Auffassung des Berufungsgerichts keine rechtlich zulässige obligatorische Benützungsvereinbarung eines ausschließlichen Nutzungsrechts der Kläger daran gesehen werden. Ein ihnen rechtswirksam eingeräumter Rechtstitel, aufgrund dessen sie den Beklagten als (schlichten) Miteigentümer von der Mitnutzung dieser Fläche ausschließen dürften, ist daher nicht zu erkennen.
[20] 3.7. Dem Einwand der Kläger in der Revisionsbeantwortung, über die Gültigkeit dieser Benützungsvereinbarung dürfe nicht im Streitverfahren abgesprochen werden, ist zu entgegnen, dass der Streitrichter an sich im – wohnrechtlichen – Außerstreitverfahren zu behandelnde Vorfragen dann selbstständig zu lösen hat, wenn über die Vorfrage noch kein Außerstreitverfahren anhängig ist (vgl RS0070570). Die Frage nach der Zulässigkeit der Benutzungsvereinbarung in Bezug auf die (angeblich) den Klägern exklusiv zugeordnete Fläche „Top 4 Zufahrt/Zugang“ ist hier Vorfrage für den von ihnen geltend gemachten und im Streitverfahren abzuhandelnden Unterlassungsanspruch nach § 523 ABGB, nach der Aktenlage nicht Gegenstand eines Außerstreitverfahrens und daher auch im Streitverfahren zu beantworten.
[21] 4. Damit war der Revision Folge zu geben. Die angefochtenen Entscheidungen waren im Sinn einer Abweisung des Klagebegehrens abzuändern.
[22] 5. Gemäß §§ 41, 50 ZPO haben die unterliegenden Kläger dem Beklagten die Kosten der Verfahren aller drei Instanzen zu ersetzen, wobei die Kläger keine Einwendungen gegen das Kostenverzeichnis des Beklagten im Verfahren erster Instanz erhoben haben und seine Kostenverzeichnisse für die Berufung und die Revision den Bestimmungen des RATG entsprechen.
Leitsätze
-
Ist eine Benützungsvereinbarung an zwingend allgemeinen Teilen zulässig?
Voraussetzung für die Zulässigkeit einer Benützungsvereinbarung ist, dass die (Teile der) gemeinsame(n) Sache – auch des betroffenen allgemeinen Teils – benützbar und rechtlich verfügbar sind. Allgemeine Teile einer Liegenschaft können von einer Benützungsvereinbarung daher nur dann erfasst werden, wenn sie verfügbar sind. Zwingend allgemeine Teile der Liegenschaft, die notwendig der allgemeinen Benützung dienen, können mangels Verfügbarkeit nicht Gegenstand einer Benützungsvereinbarung sein.Eva-Maria Hintringer | Judikatur | Leitsatz | 5 Ob 164/24i | OGH vom 14.11.2024 | Dokument-ID: 1195621